In civil engineering, not every crack in a wall is just a cosmetic defect. Sometimes, it’s a warning sign that the foundation – the invisible element – is beginning to fail. In such cases, it’s not only the effectiveness of the reinforcement that matters, but also the response time and minimal disruption to the facility’s operation.
Winkelmann Foundation Screws (WFS), thanks to their design and installation technology, prove to be an ideal tool for reinforcing existing foundations without interrupting the facility’s operations. This is precisely what we demonstrated during a project at an industrial plant in Łódź.
Cracks began to appear on the side walls of one of the industrial halls in Łódź. Initially barely noticeable, they began to deepen – to the point that the load-bearing capacity of the wall was at real risk. After a geotechnical analysis and structural assessment, the conclusion was clear: the foundation required immediate reinforcement, and any delay could have led to a production halt or – worse – failure of the entire structure.
At first glance, the task seemed difficult:
Ongoing production that could not be interrupted,
Limited access to the foundation zone – only through a technical gate,
No possibility of using heavy machinery,
Restricted working space around the existing footings.
WFS screw piles handled the task perfectly. Thanks to compact installation equipment, our operators were able to enter directly into the hall and begin pile installation without dismantling walls, without excavation, and without generating vibrations or noise that could have disrupted production.

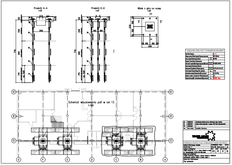
Reinforcement of the existing foundations was carried out using the modular WFS system with a diameter of 139.7 mm, installed to a precisely calculated depth. The piles were screwed in directly adjacent to the existing foundations. Their function was to:
Take over part of the vertical loads from the wall,
Limit further settlement,
Improve the interaction between the structure and the ground,
And stiffen the foundation zone.
Thanks to the displacement foundation screw pile technology, there was no need for soil removal – which would have been logistically impossible within the existing hall. The screw, with its threaded surface, ensured perfect interlock with both cohesive and non-cohesive soils, providing full load-bearing capacity from day one.
The greatest value of this project – apart from the technical aspect – was the uninterrupted operation of the facility. Production continued with minimal disruption. Only the zone near the wall was closed off, and the entire installation process was completed in just a few days – without heavy equipment, without dust, and without cutting concrete.
The client avoided downtime, saved on demolition costs, and did not have to redesign the hall. Moreover, thanks to the piles’ removability, they can be reused in the future if the hall undergoes expansion or reconstruction.


Reinforcing an existing foundation is one of the most demanding operations in construction. It requires precision, technological flexibility, and – most importantly – the ability to work in challenging investment environments.
WFS screw piles prove that saving foundations doesn’t have to mean upheaval on site. This solution acts like minimally invasive surgery: effective, quiet, and without interrupting the building’s life.
Cracks, unevenness, settlement – these aren’t signs to tear everything down. They’re signs to act swiftly and effectively. With WFS screw piles, a foundation can not only be built from scratch – it can be reinforced when it already exists and... needs a second chance.
Because not every foundation needs to be moved to be fixed.Sometimes, it just needs to be... screwed in.
If you need this in a design document, brochure, or slide deck format – let me know, I can adjust the tone or layout accordingly.

Reinforcing an existing foundation is one of the most demanding operations in construction. It requires precision, technological flexibility, and – most importantly – the ability to work in challenging investment environments.
WFS screw piles prove that saving foundations doesn’t have to mean upheaval on site. This solution acts like minimally invasive surgery: effective, quiet, and without interrupting the building’s life.
Cracks, unevenness, settlement – these aren’t signs to tear everything down. They’re signs to act swiftly and effectively. With WFS screw piles, a foundation can not only be built from scratch – it can be reinforced when it already exists and... needs a second chance.
Because not every foundation needs to be moved to be fixed.Sometimes, it just needs to be... screwed in.
If you need this in a design document, brochure, or slide deck format – let me know, I can adjust the tone or layout accordingly.

Do you have a project or a question?
Are you interested in our offer?